ГлавнаяГотовый арендный бизнес — Буденновский пр-кт, 120/1

Буденновский пр-кт, 120/1,
2105.00 м2

175 000 000 руб.

83135 руб./м2

Следить за ценой


Площадь: 2105.00 м2

Окупаемость: по запросу


Доходный арендный бизнес в центре города - 1-й этаж ТЦ «Будённовский», 2105 м

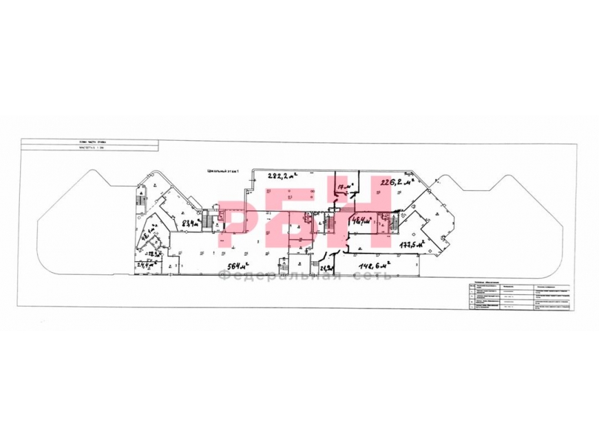
Продается готовый арендный бизнес (ГАБ) — весь 1-й этаж торгового центра «Будённовский», расположенного по адресу: г. Ростов-на-Дону, Будённовский проспект, 120/1.

Характеристики и преимущества:
- торговый центр в составе жилого комплекса (МКД)
- первая линия, высокий пешеходный и автомобильный трафик
- общая площадь 1-го этажа 2105 кв.м
- возможна покупка отдельно левой или правой части

Левая часть (841 000 ₽/мес аренды, окупаемость 10,5 лет):
- Пятёрочка - 564 м², 564 000 ₽/мес + % от РТО (открытие январь 2025)
- Аптека Апрель - 55 м², 140 000 ₽/мес
- Пивной склад - 45 000 ₽/мес
- Пустое помещение - 55 м², потенциал 80 000 ₽/мес
- Аппараты кофе/игрушки - 12 000 ₽/мес

Правая часть (628 000 ₽/мес аренды, окупаемость 9,5 лет):
- Магнит Косметик - 161 000 ₽/мес
- Красное и Белое - 90 000 ₽/мес
- Магазин Коляски - 97 000 ₽/мес
- Офис/склад (видеонаблюдение) - 130 000 ₽/мес
- Гриднев - 100 000 ₽/мес
- Пустое помещение - 21 м², потенциал 50 000 ₽/мес

Общий арендный поток: 1 480 000 ₽ в месяц
Средняя окупаемость всего объекта - 9 лет
Стабильные арендаторы, включая федеральные сети
Дополнительно — потенциал роста за счёт % от оборота и свободных площадей

Кадастровые номера: 61:44:0082018:926, 61:44:0082018:925

Идеальный выбор для инвестора, заинтересованного в готовом бизнесе с высокой ликвидностью в центре Ростова-на-Дону.

----------------------------------------------------------------------
По всем вопросам можете обращаться к вашему персональному менеджеру:
Старченко Инна - консультант по направлению офисные и торговые помещения
----------------------------------------------------------------------
Регион Бизнес Недвижимость
От собственника. Без комиссии.
Специальные условия для агентов по данному объекту.Номер объекта: #5/552636/17649

Специалист

Старченко Инна

+7-987-215-91-19

или оставьте ваш номер,
и я перезвоню в течение 5 минут

Согласен с Политикой конфинденциальности и с Политикой оператора в отношении обработки персональных данных

Отправляя заявку вы соглашаетесь на обработку персональных данных

Похожие объекты

Посмотреть другие объявления в этой категории