ГлавнаяКаталог Офис — Право-Булачная ул., 31

Право-Булачная ул., 31, 223.10 м 2

1 249 360 ₽
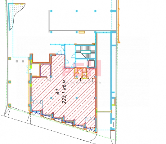
Площадь: 223.10м 2 Этаж 1 из 4
5 600 ₽/м 2
Сафина Римма
Сафина Римма
Специалист
или оставьте ваш номер,
и я перезвоню в течение 5 минут
Нажимая на кнопку, вы даете своё согласие на обработку персональных данных и соглашаетесь с политикой конфиденциальности
Сдается торговое помещение в Бизнес центре А класса в Вахитовском районе по ул. Право-Булочное

Общая площадь 223,1 кв.м.

Характеристики:
  • Первая линия;
  • Два входа и пожарный выход во двор;
  • Покрашенные стены и ковролин на полу;
  • С/у в ремонте;
  • Скуд система;
  • Планировка Open-space;
  • Приточно-вытяжная система с подогревом и охлаждением;
  • Система кондиционирования;
  • Увеличенные оконные проемы;
  • Спринклерная система пожаротушение;
  • Парковка подземная для арендаторов и гостевая;
  • Видеонаблюдение по всему периметру здания и внутри помещений;
  • Доступ на эксплуатируемую крыши с видом на историческую часть Казани;


В стоимость включен НДС 20% и эксплуатационные расходы.
Коммунальные расходы оплачиваются отдельно.

Арт. 124124450
Расположение

Право-Булачная ул., 31

Похожие объекты

Посмотреть другие объявления в этой категории