Роторная ул., 1, литера А, 11.00 м 2

2 850 000 ₽
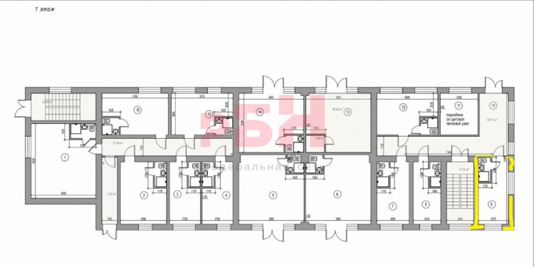
Площадь: 11.00м 2 Этаж 1 из 3
259 090 ₽/м 2
Галеев Марат
Галеев Марат
Специалист
или оставьте ваш номер,
и я перезвоню в течение 5 минут
Нажимая на кнопку, вы даете своё согласие на обработку персональных данных и соглашаетесь с политикой конфиденциальности
Офисно-торговое помещение в Вахитовском районе
Помещение с арендатором
Характеристики:
  • 1-й этаж
  • площадь 11 м2
  • отдельный вход с улицы
  • парковка перед зданием
  • отличный ремонт
  • стабильный арендатор (кабинет косметологии)
  • санузел в помещении

Арт. 129090223
Расположение

Роторная ул., 1, литера А

Похожие объекты

Посмотреть другие объявления в этой категории