Галеев Марат
Галеев Марат
Специалист
или оставьте ваш номер,
и я перезвоню в течение 5 минут
Нажимая на кнопку, вы даете своё согласие на обработку персональных данных и соглашаетесь с политикой конфиденциальности
Здание офисного центра в Советском районе.
Идеальное расположение в городе в 10 минутах от центре
Земельный участок 12 соток в собственности

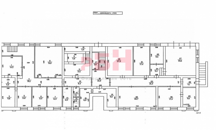
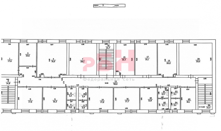
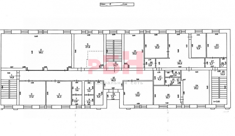
Характеристики:
  • Отдельно стоящее 4-х этажное здание с цоколем
  • 2003 г постройки
  • Общий вход с улицы и два дополнительных входа с торца здания
  • Эвакуационные выходы во двор
  • Площадь 1958.3 м2
  • Кабинетная планировка (возможна перепланировка)
  • по четыре санузла на этаже
  • центральное отопление (узел коммерческого учета тепла)
  • центральное водоснабжение и канализация (водяной узел)
  • Центральная система вентиляции с подогревом/охлаждения воздуха.
  • центральное электроснабжение, мощность 87 квт
  • Удобные подъездные пути
  • парковка перед зданием на 8 мест и закрытая во дворе на 20 мест
  • Остановка транспорта "Пионерская" на Сибирском тракте в 5 минутах

Преимущества:
  • близость к трафику общественного транспорта и торговым объектам.
  • тихий спокойный район,
  • имеется своя дворовая прилегающая территория
  • продажа с НДС.

Рядом Ершова, Губкина, Журналистов, Советская площадь
Под офис крупной компании, конструкторское бюро, обучающий центр, школа, институт, медцентр, офисный центр для сдачи в аренду.
Арт. 98100163
Расположение

Пионерская ул., 17

Похожие объекты

Посмотреть другие объявления в этой категории